- Jesteś tutaj:
- Strona Główna
- Inwestycje
- Osiedle Janowo Park III
- Mieszkanie 36,00 m² - sprzedaż
Mieszkanie Janowo, ul. Błoń Janowskich
Błoń Janowskich, Janowo, Rumia, pomorskie
- 361 003 zł
- 36,32 m²
- 9 939,50 zł/m²
Biuro Sprzedaży Rumia
Skontaktuj się
Mieszkanie Janowo, ul. Błoń Janowskich
Błoń Janowskich, Janowo, Rumia, pomorskie
zaktualizowane:
9 stycznia 2026
1/11
Wróć do galerii X
Widok ulicy jest niedostępny dla tej lokalizacji
OK
Lokalizacja przybliżona
Mieszkanie Janowo, ul. Błoń Janowskich
Inwestycja: Osiedle Janowo Park III
Zaktualizowane: 9 stycznia 2026
361 003 zł 36,32 m² 9 939,50 zł/m²
II kwartał 2026
1/3
1
garaż
deweloperski
Zobacz na mapie
Termin realizacji:
II kwartał 2026Piętro:
1/3Liczba pokoi:
1Miejsce postojowe:
garażStan mieszkania:
deweloperskiSzczegóły ogłoszenia
- Typ oferty: mieszkanie na sprzedaż
- Cena: 361 003 zł (9 939,50 zł/m²)
- Termin realizacji: II kwartał 2026
- Status oferty: dostępne
- Rynek: pierwotny (oferta dewelopera)
- Charakterystyka mieszkania: 36,32 m², 1 pokój, 1 łazienka; stan: deweloperski
- Budynek: blok mieszkalny
- winda, dostosowany do osób niepełnosprawnych
- Rozkład mieszkania: piętro 1/3, jednopoziomowe
- Powierzchnia dodatkowa: balkon (3 m²), komórka lokatorska
- Kuchnia: aneks kuchenny
- Miejsce/a postojowe: w garażu wielostanowiskowym, przynależne do mieszkania (50 miejsc); garaż w bryle budynku, winda z poziomu garażu
naziemne, przynależne do mieszkania (7 miejsc)
- Źródło: oferta dewelopera: Willbud, zaktualizowane: 09.01.2026
- sygnatura ogłoszenia: OJP3/B/P1/11
Lokalizacja
- Inwestycja: Osiedle Janowo Park III
- Adres: Błoń Janowskich, Janowo, Rumia, pomorskie
- Otoczenie: działki zabudowane, obrzeża miasta, osiedle domów jednorodzinnych, osiedle domów wielorodzinnych, tereny zielone i rekreacyjne
- Na terenie inwestycji: plac zabaw
- W pobliżu przedszkole, szkoła podstawowa, szkoła średnia, siłownia, apteka, przychodnia, przystanek autobusowy, supermarket, centrum handlowe, bankomat, kościół, poczta, park, plac zabaw, plaża w mechelinkach
Opis nieruchomości
Osiedle Janowo Park III – Twoje miejsce do życia
Osiedle jest trzecim etapem popularnej inwestycji Osiedle Janowo Park. (...)
Osiedle Janowo Park III – Twoje miejsce do życia
Osiedle jest trzecim etapem popularnej inwestycji Osiedle Janowo Park. Wszystkie lokale mieszkalne w poprzednich etapach zostały wysprzedane.
Osiedle Janowo Park III to 115 mieszkań o różnym metrażu w 4-kondygnacyjnym budynku mieszkalnym. Wszystkie poziomy są połączone cichobieżnymi windami. Pod budynkiem znajduje się obszerna hala garażowa z miejscami postojowymi oraz komórkami lokatorskimi.
W pobliżu znajdują się liczne punkty handlowe, usługowe i oświatowe, dzięki czemu w zasięgu krótkiego spaceru możesz zaspokoić swoje najważniejsze codzienne potrzeby.
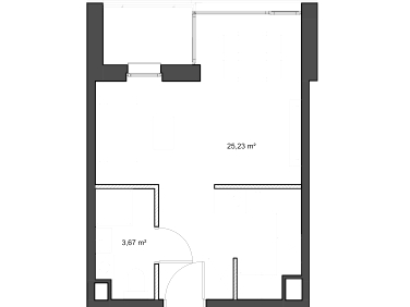
Opis mieszkania OJP3/B/P1/11
Metraż mieszkania: 36,32 m2
Metraż balkonu: 3,00 m2
Ilość pokoi: 1
Zestawienie pomieszczeń: salon z aneksem kuchennym, łazienka
Przytulna kawalerka na pierwszym piętrze z wydzielonym aneksem kuchennym i dostępem do balkonu, z którego rozpościera się widok na spokojne osiedle i przyległe tereny zielone. Lokal jest oferowany zarówno w stanie deweloperskim, jak i w wykończeniu „pod klucz”. Dzięki współpracy z naszym działem projektowym możesz otrzymać mieszkanie wprost skrojone pod Twoje potrzeby.
Razem z lokalem oferujemy miejsce w garażu podziemnym, miejsce postojowe naziemne oraz komórkę lokatorską.
Planowany termin oddania
II kwartał 2026
Lokalizacja
Janowo to dzielnica Rumi przyległa bezpośrednio do granicy Gdyni. Dzięki rozbudowanej sieci dróg, licznym liniom autobusowym i pobliskiej stacji SKM Rumia Janowo jest doskonale skomunikowana z całym Trójmiastem. To sprawia, że jest to idealne miejsce do codziennego życia. Pobliskie lasy i zaledwie 8 kilometrów do brzegu morza gwarantują Ci wspaniałe miejsce do wypoczynku.
• Granica Gdyni – 5 minut samochodem
• Stacja SKM Rumia-Janowo – 5 minut samochodem
• Plaża w Mechelinkach – 15 minut samochodem lub 30 minut rowerem
Istotne punkty w okolicy inwestycji
• Sklep: Biedronka – 5 minut spacerem
• Siłownia – 5 minut spacerem
• Błonia Janowskie – 5 minut spacerem
• Przedszkole – 7 minut spacerem
• Apteka – 7 minut spacerem
• Weterynarz – 8 minut spacerem
• Kawiarnia – 8 minut spacerem
• Szkoła Podstawowa – 9 minut spacerem
• Piekarnia – 10 minut spacerem
• Poczta – 10 minut spacerem
• Restauracja – 12 minut spacerem
• Sklep Lidl – 12 minut spacerem
• Żłobek – 12 minut spacerem
• Lekarz – 12 minut spacerem
Deweloper
Oddaliśmy już do użytku kilkadziesiąt budynków mieszkalnych w Gdyni i Rumi. Nasze inwestycje cieszą się zasłużoną popularnością, co powoduje, że lokale w nich szybko się wyprzedają. Dlatego nie czekaj i rezerwuj wymarzone przez siebie mieszkanie!
Brakuje Ci istotnych informacji? Chcesz się dowiedzieć czegoś więcej?
Nie zwlekaj – nasi sprzedawcy chętnie pomogą Ci w dokonaniu wyboru!
Strona internetowa: willbud.pl
Adres osiedla: ul. Błoń Janowskich, Rumia
Zobacz inwestycję Osiedle Janowo Park III
| Lokal użytkowyOJP3/A/P0/U1 | 30,16 m² | 9 000 zł/m² | parter/3 | 280 260 zł |
| Lokal użytkowy | ||||
|
||||
| OJP3/A/P0/U1 |
- Budynek: blok mieszkalny
- Stan wykończenia: deweloperski, możliwe wykończenie "pod klucz", możliwe wykończenie wg projektu klienta
- Przeznaczenie lokalu: handlowo-usługowy
- Charakterystyka lokalu: wejście od podwórza, jednopoziomowy
- Ogrzewanie: miejskie
- Udogodnienia: przystosowane dla osób niepełnosprawnych, winda
Osiedle Janowo Park III – Twoje miejsce na biznes
Oferujemy lokal usługowy o powierzchni 31,14 m2.
Osiedle Janowo Park III – Twoje miejsce na biznes
Oferujemy lokal usługowy o powierzchni 31,14 m2. Położony jest w środku rozbudowującego się osiedla Janowo Park, a dodatkowo doskonale skomunikowany z Rumią i Trójmiastem. Jest to jedyny lokal usługowy w budynku mieszkalnym, liczącym 115 mieszkań. Idealnie nada się na małe centrum usługowe, np. salon kosmetyczny, punkt odbioru przesyłek, warsztat itp.
Lokal sprzedajemy do samodzielnego wykończenia. Kącik sanitarny na zapleczu jest przygotowany.
Osiedle jest trzecim etapem popularnej inwestycji Janowo Park. Wszystkie lokale mieszkalne w poprzednich etapach inwestycji zostały sprzedane, a w tej chwili realizujemy trzeci etap przedsięwzięcia, którego ów lokal usługowy jest częścią. To sprawia, że pula potencjalnych klientów z każdym rokiem będzie rosła, dlatego nie czekaj, aż ktoś przejmie miejsce na Twój biznes.
Więcej
sygnatura: OJP3/A/P0/U1
| MieszkanieOJP3/B/P0/03 | 28,90 m² | 10 607,97 zł/m² | parter/3 | 1 | 306 570 zł |
| Mieszkanie | ||||
|
||||
| OJP3/B/P0/03 |
- Budynek: blok mieszkalny
- Stan wykończenia: deweloperski, możliwe wykończenie "pod klucz", możliwe wykończenie wg projektu klienta
- Charakterystyka mieszkania: jednopoziomowe, aneks kuchenny, 1 łazienka
- Ogrzewanie: miejskie
- Powierzchnia dodatkowa: taras (4,3 m²), komórka lokatorska, ogródek (23,1 m²)
- Miejsce/a postojowe:: w garażu wielostanowiskowym, przynależne do mieszkania (50 miejsc); garaż w bryle budynku, winda z poziomu garażu
naziemne, przynależne do mieszkania (7 miejsc) - Udogodnienia: przystosowane dla osób niepełnosprawnych, winda
Osiedle Janowo Park III – Twoje miejsce do życia
Osiedle jest trzecim etapem popularnej inwestycji Osiedle Janowo Park.
Osiedle Janowo Park III – Twoje miejsce do życia
Osiedle jest trzecim etapem popularnej inwestycji Osiedle Janowo Park. Wszystkie lokale mieszkalne w poprzednich etapach zostały wysprzedane.
Osiedle Janowo Park III to 115 mieszkań o różnym metrażu w 4-kondygnacyjnym budynku mieszkalnym. Wszystkie poziomy są połączone cichobieżnymi windami. Pod budynkiem znajduje się obszerna hala garażowa z miejscami postojowymi oraz komórkami lokatorskimi.
W pobliżu znajdują się liczne punkty handlowe, usługowe i oświatowe, dzięki czemu w zasięgu krótkiego spaceru możesz zaspokoić swoje najważniejsze codzienne potrzeby.
Opis mieszkania OJP3/B/P0/03
Metraż mieszkania: 28,90 m2
Metraż ogrodu: 23,06 m2 (w tym taras 4,32 m2)
Ilość pokoi: 1
Zestawienie pomieszczeń: salon z aneksem kuchennym, łazienka
Przytulna kawalerka na parterze z wydzielonym aneksem kuchennym. Częścią mieszkania jest własny ogród z tarasem, dzięki któremu można cieszyć się zielenią już pod oknami. Lokal jest oferowany zarówno w stanie deweloperskim, jak i w wykończeniu „pod klucz”. Dzięki współpracy z naszym działem projektowym możesz otrzymać mieszkanie wprost skrojone pod Twoje potrzeby.
Razem z lokalem oferujemy miejsce w garażu podziemnym, miejsce postojowe naziemne oraz komórkę lokatorską.
Planowany termin oddania
II kwartał 2026
Lokalizacja
Janowo to dzielnica Rumi przyległa bezpośrednio do granicy Gdyni. Dzięki rozbudowanej sieci dróg, licznym liniom autobusowym i pobliskiej stacji SKM Rumia Janowo jest doskonale skomunikowana z całym Trójmiastem. To sprawia, że jest to idealne miejsce do codziennego życia. Pobliskie lasy i zaledwie 8 kilometrów do brzegu morza gwarantują Ci wspaniałe miejsce do wypoczynku.
• Granica Gdyni – 5 minut samochodem
• Stacja SKM Rumia-Janowo – 5 minut samochodem
• Plaża w Mechelinkach – 15 minut samochodem lub 30 minut rowerem
Istotne punkty w okolicy inwestycji
• Sklep: Biedronka – 5 minut spacerem
• Siłownia – 5 minut spacerem
• Błonia Janowskie – 5 minut spacerem
• Przedszkole – 7 minut spacerem
• Apteka – 7 minut spacerem
• Weterynarz – 8 minut spacerem
• Kawiarnia – 8 minut spacerem
• Szkoła Podstawowa – 9 minut spacerem
• Piekarnia – 10 minut spacerem
• Poczta – 10 minut spacerem
• Restauracja – 12 minut spacerem
• Sklep Lidl – 12 minut spacerem
• Żłobek – 12 minut spacerem
• Lekarz – 12 minut spacerem
Deweloper
Oddaliśmy już do użytku kilkadziesiąt budynków mieszkalnych w Gdyni i Rumi. Nasze inwestycje cieszą się zasłużoną popularnością, co powoduje, że lokale w nich szybko się wyprzedają. Dlatego nie czekaj i rezerwuj wymarzone przez siebie mieszkanie!
Brakuje Ci istotnych informacji? Chcesz się dowiedzieć czegoś więcej?
Nie zwlekaj – nasi sprzedawcy chętnie pomogą Ci w dokonaniu wyboru!
Strona internetowa: willbud.pl
Adres osiedla: ul. Błoń Janowskich, Rumia
Więcej
sygnatura: OJP3/B/P0/03
| MieszkanieOJP3/B/P0/10 | 40,03 m² | 9 707,75 zł/m² | parter/3 | 2 | 388 601 zł |
| Mieszkanie | ||||
|
||||
| OJP3/B/P0/10 |
- Budynek: blok mieszkalny
- Stan wykończenia: deweloperski, możliwe wykończenie "pod klucz", możliwe wykończenie wg projektu klienta
- Charakterystyka mieszkania: jednopoziomowe, aneks kuchenny, 1 łazienka
- Ogrzewanie: miejskie
- Powierzchnia dodatkowa: taras (8,3 m²), komórka lokatorska, ogródek (11 m²)
- Miejsce/a postojowe:: w garażu wielostanowiskowym, przynależne do mieszkania (50 miejsc); garaż w bryle budynku, winda z poziomu garażu
naziemne, przynależne do mieszkania (7 miejsc) - Udogodnienia: przystosowane dla osób niepełnosprawnych, winda
Osiedle Janowo Park III – Twoje miejsce do życia
Osiedle jest trzecim etapem popularnej inwestycji Osiedle Janowo Park.
Osiedle Janowo Park III – Twoje miejsce do życia
Osiedle jest trzecim etapem popularnej inwestycji Osiedle Janowo Park. Wszystkie lokale mieszkalne w poprzednich etapach zostały wysprzedane.
Osiedle Janowo Park III to 115 mieszkań o różnym metrażu w 4-kondygnacyjnym budynku mieszkalnym. Wszystkie poziomy są połączone cichobieżnymi windami. Pod budynkiem znajduje się obszerna hala garażowa z miejscami postojowymi oraz komórkami lokatorskimi.
W pobliżu znajdują się liczne punkty handlowe, usługowe i oświatowe, dzięki czemu w zasięgu krótkiego spaceru możesz zaspokoić swoje najważniejsze codzienne potrzeby.
Opis mieszkania OJP3/B/P0/10
Metraż mieszkania: 40,03 m2
Metraż ogrodu: 10,95 m2 (w tym taras 8,25 m2)
Ilość pokoi: 2
Zestawienie pomieszczeń: salon z aneksem kuchennym, sypialnia, łazienka
Przytulne mieszkanie na parterze z wydzielonym aneksem kuchennym. Częścią mieszkania jest własny ogród z przewagą powierzchni na taras, który jest ciekawą propozycją dla osób chcących cieszyć się świeżym powietrzem, lecz nie mających czasu na ogród.
Lokal jest oferowany zarówno w stanie deweloperskim, jak i w wykończeniu „pod klucz”. Dzięki współpracy z naszym działem projektowym możesz otrzymać mieszkanie wprost skrojone pod Twoje potrzeby.
Planowany termin oddania
II kwartał 2026
Lokalizacja
Janowo to dzielnica Rumi przyległa bezpośrednio do granicy Gdyni. Dzięki rozbudowanej sieci dróg, licznym liniom autobusowym i pobliskiej stacji SKM Rumia Janowo jest doskonale skomunikowana z całym Trójmiastem. To sprawia, że jest to idealne miejsce do codziennego życia. Pobliskie lasy i zaledwie 8 kilometrów do brzegu morza gwarantują Ci wspaniałe miejsce do wypoczynku.
• Granica Gdyni – 5 minut samochodem
• Stacja SKM Rumia-Janowo – 5 minut samochodem
• Plaża w Mechelinkach – 15 minut samochodem lub 30 minut rowerem
Istotne punkty w okolicy inwestycji
• Sklep: Biedronka – 5 minut spacerem
• Siłownia – 5 minut spacerem
• Błonia Janowskie – 5 minut spacerem
• Przedszkole – 7 minut spacerem
• Apteka – 7 minut spacerem
• Weterynarz – 8 minut spacerem
• Kawiarnia – 8 minut spacerem
• Szkoła Podstawowa – 9 minut spacerem
• Piekarnia – 10 minut spacerem
• Poczta – 10 minut spacerem
• Restauracja – 12 minut spacerem
• Sklep Lidl – 12 minut spacerem
• Żłobek – 12 minut spacerem
• Lekarz – 12 minut spacerem
Deweloper
Oddaliśmy już do użytku kilkadziesiąt budynków mieszkalnych w Gdyni i Rumi. Nasze inwestycje cieszą się zasłużoną popularnością, co powoduje, że lokale w nich szybko się wyprzedają. Dlatego nie czekaj i rezerwuj wymarzone przez siebie mieszkanie!
Brakuje Ci istotnych informacji? Chcesz się dowiedzieć czegoś więcej?
Nie zwlekaj – nasi sprzedawcy chętnie pomogą Ci w dokonaniu wyboru!
Strona internetowa: willbud.pl
Adres osiedla: ul. Błoń Janowskich, Rumia
Więcej
sygnatura: OJP3/B/P0/10
| MieszkanieOJP3/B/P0/01 | 36,32 m² | 9 939,50 zł/m² | parter/3 | 1 | 361 003 zł |
| Mieszkanie | ||||
|
||||
| OJP3/B/P0/01 |
- Budynek: blok mieszkalny
- Stan wykończenia: deweloperski, możliwe wykończenie "pod klucz", możliwe wykończenie wg projektu klienta
- Charakterystyka mieszkania: jednopoziomowe, aneks kuchenny, 1 łazienka
- Ogrzewanie: miejskie
- Powierzchnia dodatkowa: taras (4,3 m²), komórka lokatorska, ogródek (23,1 m²)
- Miejsce/a postojowe:: w garażu wielostanowiskowym, przynależne do mieszkania (50 miejsc); garaż w bryle budynku, winda z poziomu garażu
naziemne, przynależne do mieszkania (7 miejsc) - Udogodnienia: przystosowane dla osób niepełnosprawnych, winda
Osiedle Janowo Park III – Twoje miejsce do życia
Osiedle jest trzecim etapem popularnej inwestycji Osiedle Janowo Park.
Osiedle Janowo Park III – Twoje miejsce do życia
Osiedle jest trzecim etapem popularnej inwestycji Osiedle Janowo Park. Wszystkie lokale mieszkalne w poprzednich etapach zostały wysprzedane.
Osiedle Janowo Park III to 115 mieszkań o różnym metrażu w 4-kondygnacyjnym budynku mieszkalnym. Wszystkie poziomy są połączone cichobieżnymi windami. Pod budynkiem znajduje się obszerna hala garażowa z miejscami postojowymi oraz komórkami lokatorskimi.
W pobliżu znajdują się liczne punkty handlowe, usługowe i oświatowe, dzięki czemu w zasięgu krótkiego spaceru możesz zaspokoić swoje najważniejsze codzienne potrzeby.
Opis mieszkania OJP3/B/P0/01
Metraż mieszkania: 36,32 m2
Metraż ogrodu: 23,05 m2 (w tym taras 4,32 m2)
Ilość pokoi: 1
Zestawienie pomieszczeń: salon z aneksem kuchennym, łazienka
Przytulna kawalerka na parterze z wydzielonym aneksem kuchennym. Częścią mieszkania jest własny ogród z tarasem, dzięki któremu można cieszyć się zielenią już pod oknami. Lokal jest oferowany zarówno w stanie deweloperskim, jak i w wykończeniu „pod klucz”. Dzięki współpracy z naszym działem projektowym możesz otrzymać mieszkanie wprost skrojone pod Twoje potrzeby.
Razem z lokalem oferujemy miejsce w garażu podziemnym, miejsce postojowe naziemne oraz komórkę lokatorską.
Planowany termin oddania
II kwartał 2026
Lokalizacja
Janowo to dzielnica Rumi przyległa bezpośrednio do granicy Gdyni. Dzięki rozbudowanej sieci dróg, licznym liniom autobusowym i pobliskiej stacji SKM Rumia Janowo jest doskonale skomunikowana z całym Trójmiastem. To sprawia, że jest to idealne miejsce do codziennego życia. Pobliskie lasy i zaledwie 8 kilometrów do brzegu morza gwarantują Ci wspaniałe miejsce do wypoczynku.
• Granica Gdyni – 5 minut samochodem
• Stacja SKM Rumia-Janowo – 5 minut samochodem
• Plaża w Mechelinkach – 15 minut samochodem lub 30 minut rowerem
Istotne punkty w okolicy inwestycji
• Sklep: Biedronka – 5 minut spacerem
• Siłownia – 5 minut spacerem
• Błonia Janowskie – 5 minut spacerem
• Przedszkole – 7 minut spacerem
• Apteka – 7 minut spacerem
• Weterynarz – 8 minut spacerem
• Kawiarnia – 8 minut spacerem
• Szkoła Podstawowa – 9 minut spacerem
• Piekarnia – 10 minut spacerem
• Poczta – 10 minut spacerem
• Restauracja – 12 minut spacerem
• Sklep Lidl – 12 minut spacerem
• Żłobek – 12 minut spacerem
• Lekarz – 12 minut spacerem
Deweloper
Oddaliśmy już do użytku kilkadziesiąt budynków mieszkalnych w Gdyni i Rumi. Nasze inwestycje cieszą się zasłużoną popularnością, co powoduje, że lokale w nich szybko się wyprzedają. Dlatego nie czekaj i rezerwuj wymarzone przez siebie mieszkanie!
Brakuje Ci istotnych informacji? Chcesz się dowiedzieć czegoś więcej?
Nie zwlekaj – nasi sprzedawcy chętnie pomogą Ci w dokonaniu wyboru!
Strona internetowa: willbud.pl
Adres osiedla: ul. Błoń Janowskich, Rumia
Więcej
sygnatura: OJP3/B/P0/01
| MieszkanieOJP3/B/P0/05 | 37,89 m² | 9 939,50 zł/m² | parter/3 | 1 | 376 608 zł |
| Mieszkanie | ||||
|
||||
| OJP3/B/P0/05 |
- Budynek: blok mieszkalny
- Stan wykończenia: deweloperski, możliwe wykończenie "pod klucz", możliwe wykończenie wg projektu klienta
- Charakterystyka mieszkania: jednopoziomowe, aneks kuchenny, 1 łazienka
- Ogrzewanie: miejskie
- Powierzchnia dodatkowa: taras (4,3 m²), komórka lokatorska, ogródek (23,1 m²)
- Miejsce/a postojowe:: w garażu wielostanowiskowym, przynależne do mieszkania (50 miejsc); garaż w bryle budynku, winda z poziomu garażu
naziemne, przynależne do mieszkania (7 miejsc) - Udogodnienia: przystosowane dla osób niepełnosprawnych, winda
Osiedle Janowo Park III – Twoje miejsce do życia
Osiedle jest trzecim etapem popularnej inwestycji Osiedle Janowo Park.
Osiedle Janowo Park III – Twoje miejsce do życia
Osiedle jest trzecim etapem popularnej inwestycji Osiedle Janowo Park. Wszystkie lokale mieszkalne w poprzednich etapach zostały wysprzedane.
Osiedle Janowo Park III to 115 mieszkań o różnym metrażu w 4-kondygnacyjnym budynku mieszkalnym. Wszystkie poziomy są połączone cichobieżnymi windami. Pod budynkiem znajduje się obszerna hala garażowa z miejscami postojowymi oraz komórkami lokatorskimi.
W pobliżu znajdują się liczne punkty handlowe, usługowe i oświatowe, dzięki czemu w zasięgu krótkiego spaceru możesz zaspokoić swoje najważniejsze codzienne potrzeby.
Opis mieszkania OJP3/B/P0/05
Metraż mieszkania: 37,89 m2
Metraż ogrodu: 23,06 m2 (w tym taras 4,32 m2)
Ilość pokoi: 1
Zestawienie pomieszczeń: salon z aneksem kuchennym, łazienka
Przytulna kawalerka (o ponadstandardowym wymiarze prawie 40 m2!) na parterze z wydzielonym aneksem kuchennym. Częścią mieszkania jest własny ogród z tarasem, dzięki któremu można cieszyć się zielenią już pod oknami. Lokal jest oferowany zarówno w stanie deweloperskim, jak i w wykończeniu „pod klucz”. Dzięki współpracy z naszym działem projektowym możesz otrzymać mieszkanie wprost skrojone pod Twoje potrzeby.
Razem z lokalem oferujemy miejsce w garażu podziemnym, miejsce postojowe naziemne oraz komórkę lokatorską.
Planowany termin oddania
II kwartał 2026
Lokalizacja
Janowo to dzielnica Rumi przyległa bezpośrednio do granicy Gdyni. Dzięki rozbudowanej sieci dróg, licznym liniom autobusowym i pobliskiej stacji SKM Rumia Janowo jest doskonale skomunikowana z całym Trójmiastem. To sprawia, że jest to idealne miejsce do codziennego życia. Pobliskie lasy i zaledwie 8 kilometrów do brzegu morza gwarantują Ci wspaniałe miejsce do wypoczynku.
• Granica Gdyni – 5 minut samochodem
• Stacja SKM Rumia-Janowo – 5 minut samochodem
• Plaża w Mechelinkach – 15 minut samochodem lub 30 minut rowerem
Istotne punkty w okolicy inwestycji
• Sklep: Biedronka – 5 minut spacerem
• Siłownia – 5 minut spacerem
• Błonia Janowskie – 5 minut spacerem
• Przedszkole – 7 minut spacerem
• Apteka – 7 minut spacerem
• Weterynarz – 8 minut spacerem
• Kawiarnia – 8 minut spacerem
• Szkoła Podstawowa – 9 minut spacerem
• Piekarnia – 10 minut spacerem
• Poczta – 10 minut spacerem
• Restauracja – 12 minut spacerem
• Sklep Lidl – 12 minut spacerem
• Żłobek – 12 minut spacerem
• Lekarz – 12 minut spacerem
Deweloper
Oddaliśmy już do użytku kilkadziesiąt budynków mieszkalnych w Gdyni i Rumi. Nasze inwestycje cieszą się zasłużoną popularnością, co powoduje, że lokale w nich szybko się wyprzedają. Dlatego nie czekaj i rezerwuj wymarzone przez siebie mieszkanie!
Brakuje Ci istotnych informacji? Chcesz się dowiedzieć czegoś więcej?
Nie zwlekaj – nasi sprzedawcy chętnie pomogą Ci w dokonaniu wyboru!
Strona internetowa: willbud.pl
Adres osiedla: ul. Błoń Janowskich, Rumia
Więcej
sygnatura: OJP3/B/P0/05
| MieszkanieOJP3/B/P0/06 | 37,87 m² | 9 939,50 zł/m² | parter/3 | 2 | 376 409 zł |
| Mieszkanie | ||||
|
||||
| OJP3/B/P0/06 |
- Budynek: blok mieszkalny
- Stan wykończenia: deweloperski, możliwe wykończenie "pod klucz", możliwe wykończenie wg projektu klienta
- Charakterystyka mieszkania: jednopoziomowe, aneks kuchenny, 1 łazienka
- Ogrzewanie: miejskie
- Powierzchnia dodatkowa: taras (3,4 m²), komórka lokatorska, ogródek (25 m²)
- Miejsce/a postojowe:: w garażu wielostanowiskowym, przynależne do mieszkania (50 miejsc); garaż w bryle budynku, winda z poziomu garażu
naziemne, przynależne do mieszkania (7 miejsc) - Udogodnienia: przystosowane dla osób niepełnosprawnych, winda
Osiedle Janowo Park III – Twoje miejsce do życia
Osiedle jest trzecim etapem popularnej inwestycji Osiedle Janowo Park.
Osiedle Janowo Park III – Twoje miejsce do życia
Osiedle jest trzecim etapem popularnej inwestycji Osiedle Janowo Park. Wszystkie lokale mieszkalne w poprzednich etapach zostały wysprzedane.
Osiedle Janowo Park III to 115 mieszkań o różnym metrażu w 4-kondygnacyjnym budynku mieszkalnym. Wszystkie poziomy są połączone cichobieżnymi windami. Pod budynkiem znajduje się obszerna hala garażowa z miejscami postojowymi oraz komórkami lokatorskimi.
W pobliżu znajdują się liczne punkty handlowe, usługowe i oświatowe, dzięki czemu w zasięgu krótkiego spaceru możesz zaspokoić swoje najważniejsze codzienne potrzeby.
Opis mieszkania OJP3/B/P0/06
Metraż mieszkania: 37,87 m2
Metraż ogrodu: 24,95 m2 (w tym taras 3,38 m2)
Ilość pokoi: 1
Zestawienie pomieszczeń: salon z aneksem kuchennym, łazienka
Obszerna kawalerka na parterze z wydzielonym aneksem kuchennym oraz częścią sypialną. Częścią mieszkania jest własny ogród z tarasem, dzięki któremu można cieszyć się zielenią już pod oknami. Lokal jest oferowany zarówno w stanie deweloperskim, jak i w wykończeniu „pod klucz”. Dzięki współpracy z naszym działem projektowym możesz otrzymać mieszkanie wprost skrojone pod Twoje potrzeby.
Razem z lokalem oferujemy miejsce w garażu podziemnym, miejsce postojowe naziemne oraz komórkę lokatorską.
Planowany termin oddania
II kwartał 2026
Lokalizacja
Janowo to dzielnica Rumi przyległa bezpośrednio do granicy Gdyni. Dzięki rozbudowanej sieci dróg, licznym liniom autobusowym i pobliskiej stacji SKM Rumia Janowo jest doskonale skomunikowana z całym Trójmiastem. To sprawia, że jest to idealne miejsce do codziennego życia. Pobliskie lasy i zaledwie 8 kilometrów do brzegu morza gwarantują Ci wspaniałe miejsce do wypoczynku.
• Granica Gdyni – 5 minut samochodem
• Stacja SKM Rumia-Janowo – 5 minut samochodem
• Plaża w Mechelinkach – 15 minut samochodem lub 30 minut rowerem
Istotne punkty w okolicy inwestycji
• Sklep: Biedronka – 5 minut spacerem
• Siłownia – 5 minut spacerem
• Błonia Janowskie – 5 minut spacerem
• Przedszkole – 7 minut spacerem
• Apteka – 7 minut spacerem
• Weterynarz – 8 minut spacerem
• Kawiarnia – 8 minut spacerem
• Szkoła Podstawowa – 9 minut spacerem
• Piekarnia – 10 minut spacerem
• Poczta – 10 minut spacerem
• Restauracja – 12 minut spacerem
• Sklep Lidl – 12 minut spacerem
• Żłobek – 12 minut spacerem
• Lekarz – 12 minut spacerem
Deweloper
Oddaliśmy już do użytku kilkadziesiąt budynków mieszkalnych w Gdyni i Rumi. Nasze inwestycje cieszą się zasłużoną popularnością, co powoduje, że lokale w nich szybko się wyprzedają. Dlatego nie czekaj i rezerwuj wymarzone przez siebie mieszkanie!
Brakuje Ci istotnych informacji? Chcesz się dowiedzieć czegoś więcej?
Nie zwlekaj – nasi sprzedawcy chętnie pomogą Ci w dokonaniu wyboru!
Strona internetowa: willbud.pl
Adres osiedla: ul. Błoń Janowskich, Rumia
Więcej
sygnatura: OJP3/B/P0/06
| MieszkanieOJP3/B/P0/07 | 32,64 m² | 10 094 zł/m² | parter/3 | 2 | 329 468 zł |
| Mieszkanie | ||||
|
||||
| OJP3/B/P0/07 |
- Budynek: blok mieszkalny
- Stan wykończenia: deweloperski, możliwe wykończenie "pod klucz", możliwe wykończenie wg projektu klienta
- Charakterystyka mieszkania: jednopoziomowe, aneks kuchenny, 1 łazienka
- Ogrzewanie: miejskie
- Powierzchnia dodatkowa: taras (7,4 m²), komórka lokatorska, ogródek (49,9 m²)
- Miejsce/a postojowe:: w garażu wielostanowiskowym, przynależne do mieszkania (50 miejsc); garaż w bryle budynku, winda z poziomu garażu
naziemne, przynależne do mieszkania (7 miejsc) - Udogodnienia: przystosowane dla osób niepełnosprawnych, winda
Osiedle Janowo Park III – Twoje miejsce do życia
Osiedle jest trzecim etapem popularnej inwestycji Osiedle Janowo Park.
Osiedle Janowo Park III – Twoje miejsce do życia
Osiedle jest trzecim etapem popularnej inwestycji Osiedle Janowo Park. Wszystkie lokale mieszkalne w poprzednich etapach zostały wysprzedane.
Osiedle Janowo Park III to 115 mieszkań o różnym metrażu w 4-kondygnacyjnym budynku mieszkalnym. Wszystkie poziomy są połączone cichobieżnymi windami. Pod budynkiem znajduje się obszerna hala garażowa z miejscami postojowymi oraz komórkami lokatorskimi.
W pobliżu znajdują się liczne punkty handlowe, usługowe i oświatowe, dzięki czemu w zasięgu krótkiego spaceru możesz zaspokoić swoje najważniejsze codzienne potrzeby.
Opis mieszkania OJP3/B/P0/07
Metraż mieszkania: 32,64 m2
Metraż ogrodu: 49,85 m2 (w tym taras 7,41 m2)
Ilość pokoi: 1
Zestawienie pomieszczeń: salon z aneksem kuchennym i gospodarczym, łazienka
Przytulna kawalerka na parterze z wydzielonym aneksem kuchennym oraz przestrzenią gospodarczą. Częścią mieszkania jest własny ogród o powierzchni prawie 50 m2 i z dużym tarasem, dzięki któremu można cieszyć się zielenią już pod oknami. Lokal jest oferowany zarówno w stanie deweloperskim, jak i w wykończeniu „pod klucz”. Dzięki współpracy z naszym działem projektowym możesz otrzymać mieszkanie wprost skrojone pod Twoje potrzeby.
Razem z lokalem oferujemy miejsce w garażu podziemnym, miejsce postojowe naziemne oraz komórkę lokatorską.
Planowany termin oddania
II kwartał 2026
Lokalizacja
Janowo to dzielnica Rumi przyległa bezpośrednio do granicy Gdyni. Dzięki rozbudowanej sieci dróg, licznym liniom autobusowym i pobliskiej stacji SKM Rumia Janowo jest doskonale skomunikowana z całym Trójmiastem. To sprawia, że jest to idealne miejsce do codziennego życia. Pobliskie lasy i zaledwie 8 kilometrów do brzegu morza gwarantują Ci wspaniałe miejsce do wypoczynku.
• Granica Gdyni – 5 minut samochodem
• Stacja SKM Rumia-Janowo – 5 minut samochodem
• Plaża w Mechelinkach – 15 minut samochodem lub 30 minut rowerem
Istotne punkty w okolicy inwestycji
• Sklep: Biedronka – 5 minut spacerem
• Siłownia – 5 minut spacerem
• Błonia Janowskie – 5 minut spacerem
• Przedszkole – 7 minut spacerem
• Apteka – 7 minut spacerem
• Weterynarz – 8 minut spacerem
• Kawiarnia – 8 minut spacerem
• Szkoła Podstawowa – 9 minut spacerem
• Piekarnia – 10 minut spacerem
• Poczta – 10 minut spacerem
• Restauracja – 12 minut spacerem
• Sklep Lidl – 12 minut spacerem
• Żłobek – 12 minut spacerem
• Lekarz – 12 minut spacerem
Deweloper
Oddaliśmy już do użytku kilkadziesiąt budynków mieszkalnych w Gdyni i Rumi. Nasze inwestycje cieszą się zasłużoną popularnością, co powoduje, że lokale w nich szybko się wyprzedają. Dlatego nie czekaj i rezerwuj wymarzone przez siebie mieszkanie!
Brakuje Ci istotnych informacji? Chcesz się dowiedzieć czegoś więcej?
Nie zwlekaj – nasi sprzedawcy chętnie pomogą Ci w dokonaniu wyboru!
Strona internetowa: willbud.pl
Adres osiedla: ul. Błoń Janowskich, Rumia
Więcej
sygnatura: OJP3/B/P0/07
| MieszkanieOJP3/B/P1/12 | 28,90 m² | 10 607,97 zł/m² | 1/3 | 1 | 306 570 zł |
| Mieszkanie | ||||
|
||||
| OJP3/B/P1/12 |
- Budynek: blok mieszkalny
- Stan wykończenia: deweloperski, możliwe wykończenie "pod klucz", możliwe wykończenie wg projektu klienta
- Charakterystyka mieszkania: jednopoziomowe, aneks kuchenny, 1 łazienka
- Ogrzewanie: miejskie
- Powierzchnia dodatkowa: balkon (3 m²), komórka lokatorska
- Miejsce/a postojowe:: w garażu wielostanowiskowym, przynależne do mieszkania (50 miejsc); garaż w bryle budynku, winda z poziomu garażu
naziemne, przynależne do mieszkania (7 miejsc) - Udogodnienia: przystosowane dla osób niepełnosprawnych, winda
Osiedle Janowo Park III – Twoje miejsce do życia
Osiedle jest trzecim etapem popularnej inwestycji Osiedle Janowo Park.
Osiedle Janowo Park III – Twoje miejsce do życia
Osiedle jest trzecim etapem popularnej inwestycji Osiedle Janowo Park. Wszystkie lokale mieszkalne w poprzednich etapach zostały wysprzedane.
Osiedle Janowo Park III to 115 mieszkań o różnym metrażu w 4-kondygnacyjnym budynku mieszkalnym. Wszystkie poziomy są połączone cichobieżnymi windami. Pod budynkiem znajduje się obszerna hala garażowa z miejscami postojowymi oraz komórkami lokatorskimi.
W pobliżu znajdują się liczne punkty handlowe, usługowe i oświatowe, dzięki czemu w zasięgu krótkiego spaceru możesz zaspokoić swoje najważniejsze codzienne potrzeby.
Opis mieszkania OJP3/B/P1/12
Metraż mieszkania: 28,90 m2
Metraż balkonu: 3,00 m2
Ilość pokoi: 1
Zestawienie pomieszczeń: salon z aneksem kuchennym, łazienka
Przytulna kawalerka na pierwszym piętrze z wydzielonym aneksem kuchennym i dostępem do balkonu, z którego rozpościera się widok na spokojne osiedle i przyległe tereny zielone. Lokal jest oferowany zarówno w stanie deweloperskim, jak i w wykończeniu „pod klucz”. Dzięki współpracy z naszym działem projektowym możesz otrzymać mieszkanie wprost skrojone pod Twoje potrzeby.
Razem z lokalem oferujemy miejsce w garażu podziemnym, miejsce postojowe naziemne oraz komórkę lokatorską.
Planowany termin oddania
II kwartał 2026
Lokalizacja
Janowo to dzielnica Rumi przyległa bezpośrednio do granicy Gdyni. Dzięki rozbudowanej sieci dróg, licznym liniom autobusowym i pobliskiej stacji SKM Rumia Janowo jest doskonale skomunikowana z całym Trójmiastem. To sprawia, że jest to idealne miejsce do codziennego życia. Pobliskie lasy i zaledwie 8 kilometrów do brzegu morza gwarantują Ci wspaniałe miejsce do wypoczynku.
• Granica Gdyni – 5 minut samochodem
• Stacja SKM Rumia-Janowo – 5 minut samochodem
• Plaża w Mechelinkach – 15 minut samochodem lub 30 minut rowerem
Istotne punkty w okolicy inwestycji
• Sklep: Biedronka – 5 minut spacerem
• Siłownia – 5 minut spacerem
• Błonia Janowskie – 5 minut spacerem
• Przedszkole – 7 minut spacerem
• Apteka – 7 minut spacerem
• Weterynarz – 8 minut spacerem
• Kawiarnia – 8 minut spacerem
• Szkoła Podstawowa – 9 minut spacerem
• Piekarnia – 10 minut spacerem
• Poczta – 10 minut spacerem
• Restauracja – 12 minut spacerem
• Sklep Lidl – 12 minut spacerem
• Żłobek – 12 minut spacerem
• Lekarz – 12 minut spacerem
Deweloper
Oddaliśmy już do użytku kilkadziesiąt budynków mieszkalnych w Gdyni i Rumi. Nasze inwestycje cieszą się zasłużoną popularnością, co powoduje, że lokale w nich szybko się wyprzedają. Dlatego nie czekaj i rezerwuj wymarzone przez siebie mieszkanie!
Brakuje Ci istotnych informacji? Chcesz się dowiedzieć czegoś więcej?
Nie zwlekaj – nasi sprzedawcy chętnie pomogą Ci w dokonaniu wyboru!
Strona internetowa: willbud.pl
Adres osiedla: ul. Błoń Janowskich, Rumia
Więcej
sygnatura: OJP3/B/P1/12
| MieszkanieOJP3/B/P1/15 | 37,89 m² | 9 939,50 zł/m² | 1/3 | 1 | 376 608 zł |
| Mieszkanie | ||||
|
||||
| OJP3/B/P1/15 |
- Budynek: blok mieszkalny
- Stan wykończenia: deweloperski, możliwe wykończenie "pod klucz", możliwe wykończenie wg projektu klienta
- Charakterystyka mieszkania: jednopoziomowe, aneks kuchenny, 1 łazienka
- Ogrzewanie: miejskie
- Powierzchnia dodatkowa: balkon (3 m²), komórka lokatorska
- Miejsce/a postojowe:: w garażu wielostanowiskowym, przynależne do mieszkania (50 miejsc); garaż w bryle budynku, winda z poziomu garażu
naziemne, przynależne do mieszkania (7 miejsc) - Udogodnienia: przystosowane dla osób niepełnosprawnych, winda
Osiedle Janowo Park III – Twoje miejsce do życia
Osiedle jest trzecim etapem popularnej inwestycji Osiedle Janowo Park.
Osiedle Janowo Park III – Twoje miejsce do życia
Osiedle jest trzecim etapem popularnej inwestycji Osiedle Janowo Park. Wszystkie lokale mieszkalne w poprzednich etapach zostały wysprzedane.
Osiedle Janowo Park III to 115 mieszkań o różnym metrażu w 4-kondygnacyjnym budynku mieszkalnym. Wszystkie poziomy są połączone cichobieżnymi windami. Pod budynkiem znajduje się obszerna hala garażowa z miejscami postojowymi oraz komórkami lokatorskimi.
W pobliżu znajdują się liczne punkty handlowe, usługowe i oświatowe, dzięki czemu w zasięgu krótkiego spaceru możesz zaspokoić swoje najważniejsze codzienne potrzeby.
Opis mieszkania OJP3/A/P1/15
Metraż mieszkania: 37,89 m2
Metraż balkonu: 3,00 m2
Ilość pokoi: 1
Zestawienie pomieszczeń: salon z aneksem kuchennym, łazienka
Obszerna kawalerka na pierwszym piętrze z wydzielonym aneksem kuchennym i dostępem do balkonu, z którego rozpościera się widok na spokojne osiedle i przyległe tereny zielone. Lokal jest oferowany zarówno w stanie deweloperskim, jak i w wykończeniu „pod klucz”. Dzięki współpracy z naszym działem projektowym możesz otrzymać mieszkanie wprost skrojone pod Twoje potrzeby.
Razem z lokalem oferujemy miejsce w garażu podziemnym, miejsce postojowe naziemne oraz komórkę lokatorską.
Planowany termin oddania
II kwartał 2026
Lokalizacja
Janowo to dzielnica Rumi przyległa bezpośrednio do granicy Gdyni. Dzięki rozbudowanej sieci dróg, licznym liniom autobusowym i pobliskiej stacji SKM Rumia Janowo jest doskonale skomunikowana z całym Trójmiastem. To sprawia, że jest to idealne miejsce do codziennego życia. Pobliskie lasy i zaledwie 8 kilometrów do brzegu morza gwarantują Ci wspaniałe miejsce do wypoczynku.
• Granica Gdyni – 5 minut samochodem
• Stacja SKM Rumia-Janowo – 5 minut samochodem
• Plaża w Mechelinkach – 15 minut samochodem lub 30 minut rowerem
Istotne punkty w okolicy inwestycji
• Sklep: Biedronka – 5 minut spacerem
• Siłownia – 5 minut spacerem
• Błonia Janowskie – 5 minut spacerem
• Przedszkole – 7 minut spacerem
• Apteka – 7 minut spacerem
• Weterynarz – 8 minut spacerem
• Kawiarnia – 8 minut spacerem
• Szkoła Podstawowa – 9 minut spacerem
• Piekarnia – 10 minut spacerem
• Poczta – 10 minut spacerem
• Restauracja – 12 minut spacerem
• Sklep Lidl – 12 minut spacerem
• Żłobek – 12 minut spacerem
• Lekarz – 12 minut spacerem
Deweloper
Oddaliśmy już do użytku kilkadziesiąt budynków mieszkalnych w Gdyni i Rumi. Nasze inwestycje cieszą się zasłużoną popularnością, co powoduje, że lokale w nich szybko się wyprzedają. Dlatego nie czekaj i rezerwuj wymarzone przez siebie mieszkanie!
Brakuje Ci istotnych informacji? Chcesz się dowiedzieć czegoś więcej?
Nie zwlekaj – nasi sprzedawcy chętnie pomogą Ci w dokonaniu wyboru!
Strona internetowa: willbud.pl
Adres osiedla: ul. Błoń Janowskich, Rumia
Więcej
sygnatura: OJP3/B/P1/15
| MieszkanieOJP3/B/P1/16 | 44,57 m² | 9 527,50 zł/m² | 1/3 | 2 | 424 641 zł |
| Mieszkanie | ||||
|
||||
| OJP3/B/P1/16 |
- Budynek: blok mieszkalny
- Stan wykończenia: deweloperski, możliwe wykończenie "pod klucz", możliwe wykończenie wg projektu klienta
- Charakterystyka mieszkania: jednopoziomowe, aneks kuchenny, 1 łazienka
- Ogrzewanie: miejskie
- Powierzchnia dodatkowa: balkon (3,1 m²), komórka lokatorska
- Miejsce/a postojowe:: w garażu wielostanowiskowym, przynależne do mieszkania (50 miejsc); garaż w bryle budynku, winda z poziomu garażu
naziemne, przynależne do mieszkania (7 miejsc) - Udogodnienia: przystosowane dla osób niepełnosprawnych, winda
Osiedle Janowo Park III – Twoje miejsce do życia
Osiedle jest trzecim etapem popularnej inwestycji Osiedle Janowo Park.
Osiedle Janowo Park III – Twoje miejsce do życia
Osiedle jest trzecim etapem popularnej inwestycji Osiedle Janowo Park. Wszystkie lokale mieszkalne w poprzednich etapach zostały wysprzedane.
Osiedle Janowo Park III to 115 mieszkań o różnym metrażu w 4-kondygnacyjnym budynku mieszkalnym. Wszystkie poziomy są połączone cichobieżnymi windami. Pod budynkiem znajduje się obszerna hala garażowa z miejscami postojowymi oraz komórkami lokatorskimi.
W pobliżu znajdują się liczne punkty handlowe, usługowe i oświatowe, dzięki czemu w zasięgu krótkiego spaceru możesz zaspokoić swoje najważniejsze codzienne potrzeby.
Opis mieszkania OJP3/B/P1/16
Metraż mieszkania: 44,57 m2
Metraż balkonu: 3,12 m2
Ilość pokoi: 2
Zestawienie pomieszczeń: salon z aneksem kuchennym, sypialnia, łazienka
Przytulne mieszkanie na trzecim piętrze z wydzielonym aneksem kuchennym i sypialnią. Sypialnia jest wyraźnie oddzielona od części dziennej, która posiada dostęp do dużego balkonu z widokiem na spokojne osiedle i przyległe tereny zielone. Lokal jest oferowany zarówno w stanie deweloperskim, jak i w wykończeniu „pod klucz”. Dzięki współpracy z naszym działem projektowym możesz otrzymać mieszkanie wprost skrojone pod Twoje potrzeby.
Razem z lokalem oferujemy miejsce w garażu podziemnym, miejsce postojowe naziemne oraz komórkę lokatorską.
Planowany termin oddania
II kwartał 2026
Lokalizacja
Janowo to dzielnica Rumi przyległa bezpośrednio do granicy Gdyni. Dzięki rozbudowanej sieci dróg, licznym liniom autobusowym i pobliskiej stacji SKM Rumia Janowo jest doskonale skomunikowana z całym Trójmiastem. To sprawia, że jest to idealne miejsce do codziennego życia. Pobliskie lasy i zaledwie 8 kilometrów do brzegu morza gwarantują Ci wspaniałe miejsce do wypoczynku.
• Granica Gdyni – 5 minut samochodem
• Stacja SKM Rumia-Janowo – 5 minut samochodem
• Plaża w Mechelinkach – 15 minut samochodem lub 30 minut rowerem
Istotne punkty w okolicy inwestycji
• Sklep: Biedronka – 5 minut spacerem
• Siłownia – 5 minut spacerem
• Błonia Janowskie – 5 minut spacerem
• Przedszkole – 7 minut spacerem
• Apteka – 7 minut spacerem
• Weterynarz – 8 minut spacerem
• Kawiarnia – 8 minut spacerem
• Szkoła Podstawowa – 9 minut spacerem
• Piekarnia – 10 minut spacerem
• Poczta – 10 minut spacerem
• Restauracja – 12 minut spacerem
• Sklep Lidl – 12 minut spacerem
• Żłobek – 12 minut spacerem
• Lekarz – 12 minut spacerem
Deweloper
Oddaliśmy już do użytku kilkadziesiąt budynków mieszkalnych w Gdyni i Rumi. Nasze inwestycje cieszą się zasłużoną popularnością, co powoduje, że lokale w nich szybko się wyprzedają. Dlatego nie czekaj i rezerwuj wymarzone przez siebie mieszkanie!
Brakuje Ci istotnych informacji? Chcesz się dowiedzieć czegoś więcej?
Nie zwlekaj – nasi sprzedawcy chętnie pomogą Ci w dokonaniu wyboru!
Strona internetowa: willbud.pl
Adres osiedla: ul. Błoń Janowskich, Rumia
Więcej
sygnatura: OJP3/B/P1/16
| MieszkanieOJP3/B/P2/21 | 36,32 m² | 9 939,50 zł/m² | 2/3 | 1 | 361 003 zł |
| Mieszkanie | ||||
|
||||
| OJP3/B/P2/21 |
- Budynek: blok mieszkalny
- Stan wykończenia: deweloperski, możliwe wykończenie "pod klucz", możliwe wykończenie wg projektu klienta
- Charakterystyka mieszkania: jednopoziomowe, aneks kuchenny, 1 łazienka
- Ogrzewanie: miejskie
- Powierzchnia dodatkowa: balkon (3 m²), komórka lokatorska
- Miejsce/a postojowe:: w garażu wielostanowiskowym, przynależne do mieszkania (50 miejsc); garaż w bryle budynku, winda z poziomu garażu
naziemne, przynależne do mieszkania (7 miejsc) - Udogodnienia: przystosowane dla osób niepełnosprawnych, winda
Osiedle Janowo Park III – Twoje miejsce do życia
Osiedle jest trzecim etapem popularnej inwestycji Osiedle Janowo Park.
Osiedle Janowo Park III – Twoje miejsce do życia
Osiedle jest trzecim etapem popularnej inwestycji Osiedle Janowo Park. Wszystkie lokale mieszkalne w poprzednich etapach zostały wysprzedane.
Osiedle Janowo Park III to 115 mieszkań o różnym metrażu w 4-kondygnacyjnym budynku mieszkalnym. Wszystkie poziomy są połączone cichobieżnymi windami. Pod budynkiem znajduje się obszerna hala garażowa z miejscami postojowymi oraz komórkami lokatorskimi.
W pobliżu znajdują się liczne punkty handlowe, usługowe i oświatowe, dzięki czemu w zasięgu krótkiego spaceru możesz zaspokoić swoje najważniejsze codzienne potrzeby.
Opis mieszkania OJP3/B/P2/21
Metraż mieszkania: 36,32 m2
Metraż balkonu: 3,00 m2
Ilość pokoi: 1
Zestawienie pomieszczeń: salon z aneksem kuchennym, łazienka
Przytulna kawalerka na pierwszym piętrze z wydzielonym aneksem kuchennym i dostępem do balkonu, z którego rozpościera się widok na spokojne osiedle i przyległe tereny zielone. Lokal jest oferowany zarówno w stanie deweloperskim, jak i w wykończeniu „pod klucz”. Dzięki współpracy z naszym działem projektowym możesz otrzymać mieszkanie wprost skrojone pod Twoje potrzeby.
Razem z lokalem oferujemy miejsce w garażu podziemnym, miejsce postojowe naziemne oraz komórkę lokatorską.
Planowany termin oddania
II kwartał 2026
Lokalizacja
Janowo to dzielnica Rumi przyległa bezpośrednio do granicy Gdyni. Dzięki rozbudowanej sieci dróg, licznym liniom autobusowym i pobliskiej stacji SKM Rumia Janowo jest doskonale skomunikowana z całym Trójmiastem. To sprawia, że jest to idealne miejsce do codziennego życia. Pobliskie lasy i zaledwie 8 kilometrów do brzegu morza gwarantują Ci wspaniałe miejsce do wypoczynku.
• Granica Gdyni – 5 minut samochodem
• Stacja SKM Rumia-Janowo – 5 minut samochodem
• Plaża w Mechelinkach – 15 minut samochodem lub 30 minut rowerem
Istotne punkty w okolicy inwestycji
• Sklep: Biedronka – 5 minut spacerem
• Siłownia – 5 minut spacerem
• Błonia Janowskie – 5 minut spacerem
• Przedszkole – 7 minut spacerem
• Apteka – 7 minut spacerem
• Weterynarz – 8 minut spacerem
• Kawiarnia – 8 minut spacerem
• Szkoła Podstawowa – 9 minut spacerem
• Piekarnia – 10 minut spacerem
• Poczta – 10 minut spacerem
• Restauracja – 12 minut spacerem
• Sklep Lidl – 12 minut spacerem
• Żłobek – 12 minut spacerem
• Lekarz – 12 minut spacerem
Deweloper
Oddaliśmy już do użytku kilkadziesiąt budynków mieszkalnych w Gdyni i Rumi. Nasze inwestycje cieszą się zasłużoną popularnością, co powoduje, że lokale w nich szybko się wyprzedają. Dlatego nie czekaj i rezerwuj wymarzone przez siebie mieszkanie!
Brakuje Ci istotnych informacji? Chcesz się dowiedzieć czegoś więcej?
Nie zwlekaj – nasi sprzedawcy chętnie pomogą Ci w dokonaniu wyboru!
Strona internetowa: willbud.pl
Adres osiedla: ul. Błoń Janowskich, Rumia
Więcej
sygnatura: OJP3/B/P2/21
| MieszkanieOJP3/B/P2/22 | 28,90 m² | 10 607,97 zł/m² | 2/3 | 1 | 306 570 zł |
| Mieszkanie | ||||
|
||||
| OJP3/B/P2/22 |
- Budynek: blok mieszkalny
- Stan wykończenia: deweloperski, możliwe wykończenie "pod klucz", możliwe wykończenie wg projektu klienta
- Charakterystyka mieszkania: jednopoziomowe, aneks kuchenny, 1 łazienka
- Ogrzewanie: miejskie
- Powierzchnia dodatkowa: balkon (3 m²), komórka lokatorska
- Miejsce/a postojowe:: w garażu wielostanowiskowym, przynależne do mieszkania (50 miejsc); garaż w bryle budynku, winda z poziomu garażu
naziemne, przynależne do mieszkania (7 miejsc) - Udogodnienia: przystosowane dla osób niepełnosprawnych, winda
Osiedle Janowo Park III – Twoje miejsce do życia
Osiedle jest trzecim etapem popularnej inwestycji Osiedle Janowo Park.
Osiedle Janowo Park III – Twoje miejsce do życia
Osiedle jest trzecim etapem popularnej inwestycji Osiedle Janowo Park. Wszystkie lokale mieszkalne w poprzednich etapach zostały wysprzedane.
Osiedle Janowo Park III to 115 mieszkań o różnym metrażu w 4-kondygnacyjnym budynku mieszkalnym. Wszystkie poziomy są połączone cichobieżnymi windami. Pod budynkiem znajduje się obszerna hala garażowa z miejscami postojowymi oraz komórkami lokatorskimi.
W pobliżu znajdują się liczne punkty handlowe, usługowe i oświatowe, dzięki czemu w zasięgu krótkiego spaceru możesz zaspokoić swoje najważniejsze codzienne potrzeby.
Opis mieszkania OJP3/B/P2/22
Metraż mieszkania: 28,90 m2
Metraż balkonu: 3,00 m2
Ilość pokoi: 1
Zestawienie pomieszczeń: salon z aneksem kuchennym, łazienka
Przytulna kawalerka na pierwszym piętrze z wydzielonym aneksem kuchennym i dostępem do balkonu, z którego rozpościera się widok na spokojne osiedle i przyległe tereny zielone. Lokal jest oferowany zarówno w stanie deweloperskim, jak i w wykończeniu „pod klucz”. Dzięki współpracy z naszym działem projektowym możesz otrzymać mieszkanie wprost skrojone pod Twoje potrzeby.
Razem z lokalem oferujemy miejsce w garażu podziemnym, miejsce postojowe naziemne oraz komórkę lokatorską.
Planowany termin oddania
II kwartał 2026
Lokalizacja
Janowo to dzielnica Rumi przyległa bezpośrednio do granicy Gdyni. Dzięki rozbudowanej sieci dróg, licznym liniom autobusowym i pobliskiej stacji SKM Rumia Janowo jest doskonale skomunikowana z całym Trójmiastem. To sprawia, że jest to idealne miejsce do codziennego życia. Pobliskie lasy i zaledwie 8 kilometrów do brzegu morza gwarantują Ci wspaniałe miejsce do wypoczynku.
• Granica Gdyni – 5 minut samochodem
• Stacja SKM Rumia-Janowo – 5 minut samochodem
• Plaża w Mechelinkach – 15 minut samochodem lub 30 minut rowerem
Istotne punkty w okolicy inwestycji
• Sklep: Biedronka – 5 minut spacerem
• Siłownia – 5 minut spacerem
• Błonia Janowskie – 5 minut spacerem
• Przedszkole – 7 minut spacerem
• Apteka – 7 minut spacerem
• Weterynarz – 8 minut spacerem
• Kawiarnia – 8 minut spacerem
• Szkoła Podstawowa – 9 minut spacerem
• Piekarnia – 10 minut spacerem
• Poczta – 10 minut spacerem
• Restauracja – 12 minut spacerem
• Sklep Lidl – 12 minut spacerem
• Żłobek – 12 minut spacerem
• Lekarz – 12 minut spacerem
Deweloper
Oddaliśmy już do użytku kilkadziesiąt budynków mieszkalnych w Gdyni i Rumi. Nasze inwestycje cieszą się zasłużoną popularnością, co powoduje, że lokale w nich szybko się wyprzedają. Dlatego nie czekaj i rezerwuj wymarzone przez siebie mieszkanie!
Brakuje Ci istotnych informacji? Chcesz się dowiedzieć czegoś więcej?
Nie zwlekaj – nasi sprzedawcy chętnie pomogą Ci w dokonaniu wyboru!
Strona internetowa: willbud.pl
Adres osiedla: ul. Błoń Janowskich, Rumia
Więcej
sygnatura: OJP3/B/P2/22
| MieszkanieOJP3/B/P2/23 | 28,90 m² | 10 607,97 zł/m² | 2/3 | 1 | 306 570 zł |
| Mieszkanie | ||||
|
||||
| OJP3/B/P2/23 |
- Budynek: blok mieszkalny
- Stan wykończenia: deweloperski, możliwe wykończenie "pod klucz", możliwe wykończenie wg projektu klienta
- Charakterystyka mieszkania: jednopoziomowe, aneks kuchenny, 1 łazienka
- Ogrzewanie: miejskie
- Powierzchnia dodatkowa: balkon (3 m²), komórka lokatorska
- Miejsce/a postojowe:: w garażu wielostanowiskowym, przynależne do mieszkania (50 miejsc); garaż w bryle budynku, winda z poziomu garażu
naziemne, przynależne do mieszkania (7 miejsc) - Udogodnienia: przystosowane dla osób niepełnosprawnych, winda
Osiedle Janowo Park III – Twoje miejsce do życia
Osiedle jest trzecim etapem popularnej inwestycji Osiedle Janowo Park.
Osiedle Janowo Park III – Twoje miejsce do życia
Osiedle jest trzecim etapem popularnej inwestycji Osiedle Janowo Park. Wszystkie lokale mieszkalne w poprzednich etapach zostały wysprzedane.
Osiedle Janowo Park III to 115 mieszkań o różnym metrażu w 4-kondygnacyjnym budynku mieszkalnym. Wszystkie poziomy są połączone cichobieżnymi windami. Pod budynkiem znajduje się obszerna hala garażowa z miejscami postojowymi oraz komórkami lokatorskimi.
W pobliżu znajdują się liczne punkty handlowe, usługowe i oświatowe, dzięki czemu w zasięgu krótkiego spaceru możesz zaspokoić swoje najważniejsze codzienne potrzeby.
Opis mieszkania OJP3/B/P2/23
Metraż mieszkania: 28,90 m2
Metraż balkonu: 3,00 m2
Ilość pokoi: 1
Zestawienie pomieszczeń: salon z aneksem kuchennym, łazienka
Przytulna kawalerka na drugim piętrze z wydzielonym aneksem kuchennym i dostępem do balkonu, z którego rozpościera się widok na spokojne osiedle i przyległe tereny zielone. Lokal jest oferowany zarówno w stanie deweloperskim, jak i w wykończeniu „pod klucz”. Dzięki współpracy z naszym działem projektowym możesz otrzymać mieszkanie wprost skrojone pod Twoje potrzeby.
Razem z lokalem oferujemy miejsce w garażu podziemnym, miejsce postojowe naziemne oraz komórkę lokatorską.
Planowany termin oddania
II kwartał 2026
Lokalizacja
Janowo to dzielnica Rumi przyległa bezpośrednio do granicy Gdyni. Dzięki rozbudowanej sieci dróg, licznym liniom autobusowym i pobliskiej stacji SKM Rumia Janowo jest doskonale skomunikowana z całym Trójmiastem. To sprawia, że jest to idealne miejsce do codziennego życia. Pobliskie lasy i zaledwie 8 kilometrów do brzegu morza gwarantują Ci wspaniałe miejsce do wypoczynku.
• Granica Gdyni – 5 minut samochodem
• Stacja SKM Rumia-Janowo – 5 minut samochodem
• Plaża w Mechelinkach – 15 minut samochodem lub 30 minut rowerem
Istotne punkty w okolicy inwestycji
• Sklep: Biedronka – 5 minut spacerem
• Siłownia – 5 minut spacerem
• Błonia Janowskie – 5 minut spacerem
• Przedszkole – 7 minut spacerem
• Apteka – 7 minut spacerem
• Weterynarz – 8 minut spacerem
• Kawiarnia – 8 minut spacerem
• Szkoła Podstawowa – 9 minut spacerem
• Piekarnia – 10 minut spacerem
• Poczta – 10 minut spacerem
• Restauracja – 12 minut spacerem
• Sklep Lidl – 12 minut spacerem
• Żłobek – 12 minut spacerem
• Lekarz – 12 minut spacerem
Deweloper
Oddaliśmy już do użytku kilkadziesiąt budynków mieszkalnych w Gdyni i Rumi. Nasze inwestycje cieszą się zasłużoną popularnością, co powoduje, że lokale w nich szybko się wyprzedają. Dlatego nie czekaj i rezerwuj wymarzone przez siebie mieszkanie!
Brakuje Ci istotnych informacji? Chcesz się dowiedzieć czegoś więcej?
Nie zwlekaj – nasi sprzedawcy chętnie pomogą Ci w dokonaniu wyboru!
Strona internetowa: willbud.pl
Adres osiedla: ul. Błoń Janowskich, Rumia
Więcej
sygnatura: OJP3/B/P2/23
| MieszkanieOJP3/B/P2/25 | 37,89 m² | 9 939,50 zł/m² | 2/3 | 1 | 376 608 zł |
| Mieszkanie | ||||
|
||||
| OJP3/B/P2/25 |
- Budynek: blok mieszkalny
- Stan wykończenia: deweloperski, możliwe wykończenie "pod klucz", możliwe wykończenie wg projektu klienta
- Charakterystyka mieszkania: jednopoziomowe, aneks kuchenny, 1 łazienka
- Ogrzewanie: miejskie
- Powierzchnia dodatkowa: balkon (3 m²), komórka lokatorska
- Miejsce/a postojowe:: w garażu wielostanowiskowym, przynależne do mieszkania (50 miejsc); garaż w bryle budynku, winda z poziomu garażu
naziemne, przynależne do mieszkania (7 miejsc) - Udogodnienia: przystosowane dla osób niepełnosprawnych, winda
Osiedle Janowo Park III – Twoje miejsce do życia
Osiedle jest trzecim etapem popularnej inwestycji Osiedle Janowo Park.
Osiedle Janowo Park III – Twoje miejsce do życia
Osiedle jest trzecim etapem popularnej inwestycji Osiedle Janowo Park. Wszystkie lokale mieszkalne w poprzednich etapach zostały wysprzedane.
Osiedle Janowo Park III to 115 mieszkań o różnym metrażu w 4-kondygnacyjnym budynku mieszkalnym. Wszystkie poziomy są połączone cichobieżnymi windami. Pod budynkiem znajduje się obszerna hala garażowa z miejscami postojowymi oraz komórkami lokatorskimi.
W pobliżu znajdują się liczne punkty handlowe, usługowe i oświatowe, dzięki czemu w zasięgu krótkiego spaceru możesz zaspokoić swoje najważniejsze codzienne potrzeby.
Opis mieszkania OJP3/B/P2/25
Metraż mieszkania: 37,89 m2
Metraż balkonu: 3,00 m2
Ilość pokoi: 1
Zestawienie pomieszczeń: salon z aneksem kuchennym, łazienka
Przytulna kawalerka na drugim piętrze z wydzielonym aneksem kuchennym i dostępem do balkonu, z którego rozpościera się widok na spokojne osiedle i przyległe tereny zielone. Lokal jest oferowany zarówno w stanie deweloperskim, jak i w wykończeniu „pod klucz”. Dzięki współpracy z naszym działem projektowym możesz otrzymać mieszkanie wprost skrojone pod Twoje potrzeby.
Razem z lokalem oferujemy miejsce w garażu podziemnym, miejsce postojowe naziemne oraz komórkę lokatorską.
Planowany termin oddania
II kwartał 2026
Lokalizacja
Janowo to dzielnica Rumi przyległa bezpośrednio do granicy Gdyni. Dzięki rozbudowanej sieci dróg, licznym liniom autobusowym i pobliskiej stacji SKM Rumia Janowo jest doskonale skomunikowana z całym Trójmiastem. To sprawia, że jest to idealne miejsce do codziennego życia. Pobliskie lasy i zaledwie 8 kilometrów do brzegu morza gwarantują Ci wspaniałe miejsce do wypoczynku.
• Granica Gdyni – 5 minut samochodem
• Stacja SKM Rumia-Janowo – 5 minut samochodem
• Plaża w Mechelinkach – 15 minut samochodem lub 30 minut rowerem
Istotne punkty w okolicy inwestycji
• Sklep: Biedronka – 5 minut spacerem
• Siłownia – 5 minut spacerem
• Błonia Janowskie – 5 minut spacerem
• Przedszkole – 7 minut spacerem
• Apteka – 7 minut spacerem
• Weterynarz – 8 minut spacerem
• Kawiarnia – 8 minut spacerem
• Szkoła Podstawowa – 9 minut spacerem
• Piekarnia – 10 minut spacerem
• Poczta – 10 minut spacerem
• Restauracja – 12 minut spacerem
• Sklep Lidl – 12 minut spacerem
• Żłobek – 12 minut spacerem
• Lekarz – 12 minut spacerem
Deweloper
Oddaliśmy już do użytku kilkadziesiąt budynków mieszkalnych w Gdyni i Rumi. Nasze inwestycje cieszą się zasłużoną popularnością, co powoduje, że lokale w nich szybko się wyprzedają. Dlatego nie czekaj i rezerwuj wymarzone przez siebie mieszkanie!
Brakuje Ci istotnych informacji? Chcesz się dowiedzieć czegoś więcej?
Nie zwlekaj – nasi sprzedawcy chętnie pomogą Ci w dokonaniu wyboru!
Strona internetowa: willbud.pl
Adres osiedla: ul. Błoń Janowskich, Rumia
Więcej
sygnatura: OJP3/B/P2/25
| MieszkanieOJP3/B/P2/26 | 44,57 m² | 9 527,50 zł/m² | 2/3 | 2 | 424 641 zł |
| Mieszkanie | ||||
|
||||
| OJP3/B/P2/26 |
- Budynek: blok mieszkalny
- Stan wykończenia: deweloperski, możliwe wykończenie "pod klucz", możliwe wykończenie wg projektu klienta
- Charakterystyka mieszkania: jednopoziomowe, aneks kuchenny, 1 łazienka
- Ogrzewanie: miejskie
- Powierzchnia dodatkowa: balkon (3,1 m²), komórka lokatorska
- Miejsce/a postojowe:: w garażu wielostanowiskowym, przynależne do mieszkania (50 miejsc); garaż w bryle budynku, winda z poziomu garażu
naziemne, przynależne do mieszkania (7 miejsc) - Udogodnienia: przystosowane dla osób niepełnosprawnych, winda
Osiedle Janowo Park III – Twoje miejsce do życia
Osiedle jest trzecim etapem popularnej inwestycji Osiedle Janowo Park.
Osiedle Janowo Park III – Twoje miejsce do życia
Osiedle jest trzecim etapem popularnej inwestycji Osiedle Janowo Park. Wszystkie lokale mieszkalne w poprzednich etapach zostały wysprzedane.
Osiedle Janowo Park III to 115 mieszkań o różnym metrażu w 4-kondygnacyjnym budynku mieszkalnym. Wszystkie poziomy są połączone cichobieżnymi windami. Pod budynkiem znajduje się obszerna hala garażowa z miejscami postojowymi oraz komórkami lokatorskimi.
W pobliżu znajdują się liczne punkty handlowe, usługowe i oświatowe, dzięki czemu w zasięgu krótkiego spaceru możesz zaspokoić swoje najważniejsze codzienne potrzeby.
Opis mieszkania OJP3/B/P2/26
Metraż mieszkania: 44,57 m2
Metraż balkonu: 3,12 m2
Ilość pokoi: 2
Zestawienie pomieszczeń: salon z aneksem kuchennym, sypialnia, łazienka
Przytulne mieszkanie na trzecim piętrze z wydzielonym aneksem kuchennym i sypialnią. Sypialnia jest wyraźnie oddzielona od części dziennej, która posiada dostęp do dużego balkonu z widokiem na spokojne osiedle i przyległe tereny zielone. Lokal jest oferowany zarówno w stanie deweloperskim, jak i w wykończeniu „pod klucz”. Dzięki współpracy z naszym działem projektowym możesz otrzymać mieszkanie wprost skrojone pod Twoje potrzeby.
Razem z lokalem oferujemy miejsce w garażu podziemnym, miejsce postojowe naziemne oraz komórkę lokatorską.
Planowany termin oddania
II kwartał 2026
Lokalizacja
Janowo to dzielnica Rumi przyległa bezpośrednio do granicy Gdyni. Dzięki rozbudowanej sieci dróg, licznym liniom autobusowym i pobliskiej stacji SKM Rumia Janowo jest doskonale skomunikowana z całym Trójmiastem. To sprawia, że jest to idealne miejsce do codziennego życia. Pobliskie lasy i zaledwie 8 kilometrów do brzegu morza gwarantują Ci wspaniałe miejsce do wypoczynku.
• Granica Gdyni – 5 minut samochodem
• Stacja SKM Rumia-Janowo – 5 minut samochodem
• Plaża w Mechelinkach – 15 minut samochodem lub 30 minut rowerem
Istotne punkty w okolicy inwestycji
• Sklep: Biedronka – 5 minut spacerem
• Siłownia – 5 minut spacerem
• Błonia Janowskie – 5 minut spacerem
• Przedszkole – 7 minut spacerem
• Apteka – 7 minut spacerem
• Weterynarz – 8 minut spacerem
• Kawiarnia – 8 minut spacerem
• Szkoła Podstawowa – 9 minut spacerem
• Piekarnia – 10 minut spacerem
• Poczta – 10 minut spacerem
• Restauracja – 12 minut spacerem
• Sklep Lidl – 12 minut spacerem
• Żłobek – 12 minut spacerem
• Lekarz – 12 minut spacerem
Deweloper
Oddaliśmy już do użytku kilkadziesiąt budynków mieszkalnych w Gdyni i Rumi. Nasze inwestycje cieszą się zasłużoną popularnością, co powoduje, że lokale w nich szybko się wyprzedają. Dlatego nie czekaj i rezerwuj wymarzone przez siebie mieszkanie!
Brakuje Ci istotnych informacji? Chcesz się dowiedzieć czegoś więcej?
Nie zwlekaj – nasi sprzedawcy chętnie pomogą Ci w dokonaniu wyboru!
Strona internetowa: willbud.pl
Adres osiedla: ul. Błoń Janowskich, Rumia
Więcej
sygnatura: OJP3/B/P2/26
| MieszkanieOJP3/B/P3/34 | 28,90 m² | 10 607,97 zł/m² | 3/3 | 1 | 306 570 zł |
| Mieszkanie | ||||
|
||||
| OJP3/B/P3/34 |
- Budynek: blok mieszkalny
- Stan wykończenia: deweloperski, możliwe wykończenie "pod klucz", możliwe wykończenie wg projektu klienta
- Charakterystyka mieszkania: jednopoziomowe, aneks kuchenny, 1 łazienka
- Ogrzewanie: miejskie
- Powierzchnia dodatkowa: balkon (3 m²), komórka lokatorska
- Miejsce/a postojowe:: w garażu wielostanowiskowym, przynależne do mieszkania (50 miejsc); garaż w bryle budynku, winda z poziomu garażu
naziemne, przynależne do mieszkania (7 miejsc) - Udogodnienia: przystosowane dla osób niepełnosprawnych, winda
Osiedle Janowo Park III – Twoje miejsce do życia
Osiedle jest trzecim etapem popularnej inwestycji Osiedle Janowo Park.
Osiedle Janowo Park III – Twoje miejsce do życia
Osiedle jest trzecim etapem popularnej inwestycji Osiedle Janowo Park. Wszystkie lokale mieszkalne w poprzednich etapach zostały wysprzedane.
Osiedle Janowo Park III to 115 mieszkań o różnym metrażu w 4-kondygnacyjnym budynku mieszkalnym. Wszystkie poziomy są połączone cichobieżnymi windami. Pod budynkiem znajduje się obszerna hala garażowa z miejscami postojowymi oraz komórkami lokatorskimi.
W pobliżu znajdują się liczne punkty handlowe, usługowe i oświatowe, dzięki czemu w zasięgu krótkiego spaceru możesz zaspokoić swoje najważniejsze codzienne potrzeby.
Opis mieszkania OJP3/B/P3/34
Metraż mieszkania: 28,90 m2
Metraż balkonu: 3,00 m2
Ilość pokoi: 1
Zestawienie pomieszczeń: salon z aneksem kuchennym, łazienka
Przytulna kawalerka na trzecim piętrze z wydzielonym aneksem kuchennym i dostępem do balkonu, z którego rozpościera się widok na spokojne osiedle i przyległe tereny zielone. Lokal jest oferowany zarówno w stanie deweloperskim, jak i w wykończeniu „pod klucz”. Dzięki współpracy z naszym działem projektowym możesz otrzymać mieszkanie wprost skrojone pod Twoje potrzeby.
Razem z lokalem oferujemy miejsce w garażu podziemnym, miejsce postojowe naziemne oraz komórkę lokatorską.
Planowany termin oddania
II kwartał 2026
Lokalizacja
Janowo to dzielnica Rumi przyległa bezpośrednio do granicy Gdyni. Dzięki rozbudowanej sieci dróg, licznym liniom autobusowym i pobliskiej stacji SKM Rumia Janowo jest doskonale skomunikowana z całym Trójmiastem. To sprawia, że jest to idealne miejsce do codziennego życia. Pobliskie lasy i zaledwie 8 kilometrów do brzegu morza gwarantują Ci wspaniałe miejsce do wypoczynku.
• Granica Gdyni – 5 minut samochodem
• Stacja SKM Rumia-Janowo – 5 minut samochodem
• Plaża w Mechelinkach – 15 minut samochodem lub 30 minut rowerem
Istotne punkty w okolicy inwestycji
• Sklep: Biedronka – 5 minut spacerem
• Siłownia – 5 minut spacerem
• Błonia Janowskie – 5 minut spacerem
• Przedszkole – 7 minut spacerem
• Apteka – 7 minut spacerem
• Weterynarz – 8 minut spacerem
• Kawiarnia – 8 minut spacerem
• Szkoła Podstawowa – 9 minut spacerem
• Piekarnia – 10 minut spacerem
• Poczta – 10 minut spacerem
• Restauracja – 12 minut spacerem
• Sklep Lidl – 12 minut spacerem
• Żłobek – 12 minut spacerem
• Lekarz – 12 minut spacerem
Deweloper
Oddaliśmy już do użytku kilkadziesiąt budynków mieszkalnych w Gdyni i Rumi. Nasze inwestycje cieszą się zasłużoną popularnością, co powoduje, że lokale w nich szybko się wyprzedają. Dlatego nie czekaj i rezerwuj wymarzone przez siebie mieszkanie!
Brakuje Ci istotnych informacji? Chcesz się dowiedzieć czegoś więcej?
Nie zwlekaj – nasi sprzedawcy chętnie pomogą Ci w dokonaniu wyboru!
Strona internetowa: willbud.pl
Adres osiedla: ul. Błoń Janowskich, Rumia
Więcej
sygnatura: OJP3/B/P3/34
| MieszkanieOJP3/B/P3/37 | 41,83 m² | 9 950,44 zł/m² | 3/3 | 2 | 416 227 zł |
| Mieszkanie | ||||
|
||||
| OJP3/B/P3/37 |
- Budynek: blok mieszkalny
- Stan wykończenia: deweloperski, możliwe wykończenie "pod klucz", możliwe wykończenie wg projektu klienta
- Charakterystyka mieszkania: jednopoziomowe, aneks kuchenny, 1 łazienka
- Ogrzewanie: miejskie
- Powierzchnia dodatkowa: balkon (3,4 m²), komórka lokatorska
- Miejsce/a postojowe:: w garażu wielostanowiskowym, przynależne do mieszkania (50 miejsc); garaż w bryle budynku, winda z poziomu garażu
naziemne, przynależne do mieszkania (7 miejsc) - Udogodnienia: przystosowane dla osób niepełnosprawnych, winda
Osiedle Janowo Park III – Twoje miejsce do życia
Osiedle jest trzecim etapem popularnej inwestycji Osiedle Janowo Park.
Osiedle Janowo Park III – Twoje miejsce do życia
Osiedle jest trzecim etapem popularnej inwestycji Osiedle Janowo Park. Wszystkie lokale mieszkalne w poprzednich etapach zostały wysprzedane.
Osiedle Janowo Park III to 115 mieszkań o różnym metrażu w 4-kondygnacyjnym budynku mieszkalnym. Wszystkie poziomy są połączone cichobieżnymi windami. Pod budynkiem znajduje się obszerna hala garażowa z miejscami postojowymi oraz komórkami lokatorskimi.
W pobliżu znajdują się liczne punkty handlowe, usługowe i oświatowe, dzięki czemu w zasięgu krótkiego spaceru możesz zaspokoić swoje najważniejsze codzienne potrzeby.
Opis mieszkania OJP3/B/P3/37
Metraż mieszkania: 41,83 m2
Metraż balkonu: 3,38 m2
Ilość pokoi: 2
Zestawienie pomieszczeń: salon z aneksem kuchennym, sypialnia, łazienka
Przytulne mieszkanie na trzecim piętrze z wydzielonym aneksem kuchennym i sypialnią. Sypialnia jest wyraźnie oddzielona od części dziennej, która posiada dostęp do dużego balkonu z widokiem na spokojne osiedle i przyległe tereny zielone. Lokal jest oferowany zarówno w stanie deweloperskim, jak i w wykończeniu „pod klucz”. Dzięki współpracy z naszym działem projektowym możesz otrzymać mieszkanie wprost skrojone pod Twoje potrzeby.
Razem z lokalem oferujemy miejsce w garażu podziemnym, miejsce postojowe naziemne oraz komórkę lokatorską.
Planowany termin oddania
II kwartał 2026
Lokalizacja
Janowo to dzielnica Rumi przyległa bezpośrednio do granicy Gdyni. Dzięki rozbudowanej sieci dróg, licznym liniom autobusowym i pobliskiej stacji SKM Rumia Janowo jest doskonale skomunikowana z całym Trójmiastem. To sprawia, że jest to idealne miejsce do codziennego życia. Pobliskie lasy i zaledwie 8 kilometrów do brzegu morza gwarantują Ci wspaniałe miejsce do wypoczynku.
• Granica Gdyni – 5 minut samochodem
• Stacja SKM Rumia-Janowo – 5 minut samochodem
• Plaża w Mechelinkach – 15 minut samochodem lub 30 minut rowerem
Istotne punkty w okolicy inwestycji
• Sklep: Biedronka – 5 minut spacerem
• Siłownia – 5 minut spacerem
• Błonia Janowskie – 5 minut spacerem
• Przedszkole – 7 minut spacerem
• Apteka – 7 minut spacerem
• Weterynarz – 8 minut spacerem
• Kawiarnia – 8 minut spacerem
• Szkoła Podstawowa – 9 minut spacerem
• Piekarnia – 10 minut spacerem
• Poczta – 10 minut spacerem
• Restauracja – 12 minut spacerem
• Sklep Lidl – 12 minut spacerem
• Żłobek – 12 minut spacerem
• Lekarz – 12 minut spacerem
Deweloper
Oddaliśmy już do użytku kilkadziesiąt budynków mieszkalnych w Gdyni i Rumi. Nasze inwestycje cieszą się zasłużoną popularnością, co powoduje, że lokale w nich szybko się wyprzedają. Dlatego nie czekaj i rezerwuj wymarzone przez siebie mieszkanie!
Brakuje Ci istotnych informacji? Chcesz się dowiedzieć czegoś więcej?
Nie zwlekaj – nasi sprzedawcy chętnie pomogą Ci w dokonaniu wyboru!
Strona internetowa: willbud.pl
Adres osiedla: ul. Błoń Janowskich, Rumia
Więcej
sygnatura: OJP3/B/P3/37
| MieszkanieOJP3/C/P0/07 | 36,94 m² | 10 187,99 zł/m² | parter/3 | 2 | 376 344 zł |
| Mieszkanie | ||||
|
||||
| OJP3/C/P0/07 |
- Budynek: blok mieszkalny
- Stan wykończenia: deweloperski, możliwe wykończenie "pod klucz", możliwe wykończenie wg projektu klienta
- Charakterystyka mieszkania: jednopoziomowe, aneks kuchenny, 1 łazienka
- Ogrzewanie: miejskie
- Powierzchnia dodatkowa: taras (7,8 m²), komórka lokatorska, ogródek (24,7 m²)
- Miejsce/a postojowe:: w garażu wielostanowiskowym, przynależne do mieszkania (50 miejsc); garaż w bryle budynku, winda z poziomu garażu
naziemne, przynależne do mieszkania (7 miejsc) - Udogodnienia: przystosowane dla osób niepełnosprawnych, winda
Osiedle Janowo Park III – Twoje miejsce do życia
Osiedle jest trzecim etapem popularnej inwestycji Osiedle Janowo Park.
Osiedle Janowo Park III – Twoje miejsce do życia
Osiedle jest trzecim etapem popularnej inwestycji Osiedle Janowo Park. Wszystkie lokale mieszkalne w poprzednich etapach zostały wysprzedane.
Osiedle Janowo Park III to 115 mieszkań o różnym metrażu w 4-kondygnacyjnym budynku mieszkalnym. Wszystkie poziomy są połączone cichobieżnymi windami. Pod budynkiem znajduje się obszerna hala garażowa z miejscami postojowymi oraz komórkami lokatorskimi.
W pobliżu znajdują się liczne punkty handlowe, usługowe i oświatowe, dzięki czemu w zasięgu krótkiego spaceru możesz zaspokoić swoje najważniejsze codzienne potrzeby.
Opis mieszkania OJP3/C/P0/07
Metraż mieszkania: 36,94 m2
Metraż ogrodu: 24,66 m2(w tym taras 7,78 m2)
Ilość pokoi: 3
Zestawienie pomieszczeń: salon z aneksem kuchennym, dwie sypialnie, łazienka
Przytulne mieszkanie na parterze z wydzielonym aneksem kuchennym. Częścią mieszkania jest własny ogród z tarasem, dzięki któremu można cieszyć się zielenią już pod oknami. Lokal jest oferowany zarówno w stanie deweloperskim, jak i w wykończeniu „pod klucz”. Dzięki współpracy z naszym działem projektowym możesz otrzymać mieszkanie wprost skrojone pod Twoje potrzeby.
Razem z lokalem oferujemy miejsce w garażu podziemnym, miejsce postojowe naziemne oraz komórkę lokatorską.
Planowany termin oddania
II kwartał 2026
Lokalizacja
Janowo to dzielnica Rumi przyległa bezpośrednio do granicy Gdyni. Dzięki rozbudowanej sieci dróg, licznym liniom autobusowym i pobliskiej stacji SKM Rumia Janowo jest doskonale skomunikowana z całym Trójmiastem. To sprawia, że jest to idealne miejsce do codziennego życia. Pobliskie lasy i zaledwie 8 kilometrów do brzegu morza gwarantują Ci wspaniałe miejsce do wypoczynku.
• Granica Gdyni – 5 minut samochodem
• Stacja SKM Rumia-Janowo – 5 minut samochodem
• Plaża w Mechelinkach – 15 minut samochodem lub 30 minut rowerem
Istotne punkty w okolicy inwestycji
• Sklep: Biedronka – 5 minut spacerem
• Siłownia – 5 minut spacerem
• Błonia Janowskie – 5 minut spacerem
• Przedszkole – 7 minut spacerem
• Apteka – 7 minut spacerem
• Weterynarz – 8 minut spacerem
• Kawiarnia – 8 minut spacerem
• Szkoła Podstawowa – 9 minut spacerem
• Piekarnia – 10 minut spacerem
• Poczta – 10 minut spacerem
• Restauracja – 12 minut spacerem
• Sklep Lidl – 12 minut spacerem
• Żłobek – 12 minut spacerem
• Lekarz – 12 minut spacerem
Deweloper
Oddaliśmy już do użytku kilkadziesiąt budynków mieszkalnych w Gdyni i Rumi. Nasze inwestycje cieszą się zasłużoną popularnością, co powoduje, że lokale w nich szybko się wyprzedają. Dlatego nie czekaj i rezerwuj wymarzone przez siebie mieszkanie!
Brakuje Ci istotnych informacji? Chcesz się dowiedzieć czegoś więcej?
Nie zwlekaj – nasi sprzedawcy chętnie pomogą Ci w dokonaniu wyboru!
Strona internetowa: willbud.pl
Adres osiedla: ul. Błoń Janowskich, Rumia
Więcej
sygnatura: OJP3/C/P0/07
WięcejPokaż pozostałe
Zobacz inwestycję Osiedle Janowo Park III

280 260 zł
30,16 m²
9 000 zł/m²
parter/3

306 570 zł
28,90 m²
10 607,97 zł/m²
parter/3
1

388 601 zł
40,03 m²
9 707,75 zł/m²
parter/3
2

361 003 zł
36,32 m²
9 939,50 zł/m²
parter/3
1

376 608 zł
37,89 m²
9 939,50 zł/m²
parter/3
1

376 409 zł
37,87 m²
9 939,50 zł/m²
parter/3
2

329 468 zł
32,64 m²
10 094 zł/m²
parter/3
2

306 570 zł
28,90 m²
10 607,97 zł/m²
1/3
1

376 608 zł
37,89 m²
9 939,50 zł/m²
1/3
1

424 641 zł
44,57 m²
9 527,50 zł/m²
1/3
2

361 003 zł
36,32 m²
9 939,50 zł/m²
2/3
1

306 570 zł
28,90 m²
10 607,97 zł/m²
2/3
1

306 570 zł
28,90 m²
10 607,97 zł/m²
2/3
1

376 608 zł
37,89 m²
9 939,50 zł/m²
2/3
1

424 641 zł
44,57 m²
9 527,50 zł/m²
2/3
2

306 570 zł
28,90 m²
10 607,97 zł/m²
3/3
1

416 227 zł
41,83 m²
9 950,44 zł/m²
3/3
2

376 344 zł
36,94 m²
10 187,99 zł/m²
parter/3
2
Zobacz pozostałe
Biuro Sprzedaży Rumia
572 361...
572 361 213
Wysyłanie wiadomości
Wiadomość została
wysłana
wyślij kolejną wiadomość
Udostępnij
Kontakt
Biuro Sprzedaży Rumia
572 361...
572 361 213
Z góry dziękujemy za powołanie się na Nieruchomosci-online.pl
Wysyłanie wiadomości
Wiadomość została
wysłana
wyślij kolejną wiadomość
Kontakt
Biuro Sprzedaży Rumia
Zostaw telefon, oddzwonimy
Wysyłanie wiadomości
Wiadomość została
wysłana
wyślij kolejną wiadomość
Wysyłanie wiadomości
Wiadomość została
wysłana
wyślij kolejną wiadomość
Zgłoś błąd lub naruszenie

