Nowe mieszkanie Janowo, ul. Błoń Janowskich
Błoń Janowskich, Janowo, Rumia, pomorskie
- 381 174 zł
- 34,34 m²
- 11 100 zł/m²
Biuro Sprzedaży
Skontaktuj się
Nowe mieszkanie Janowo, ul. Błoń Janowskich
Błoń Janowskich, Janowo, Rumia, pomorskie
zobacz mapę
zaktualizowane:
30 października 2025
Nowe mieszkanie Janowo, ul. Błoń Janowskich
Inwestycja: Osiedle przy Błoniach
Zaktualizowane: 30 października 2025
381 174 zł 34,34 m² 11 100 zł/m²
październik 2027
1/4
2
garaż
deweloperski
Zobacz na mapie
Termin realizacji:
październik 2027Piętro:
1/4Liczba pokoi:
2Miejsce postojowe:
garażStan mieszkania:
deweloperskiSzczegóły ogłoszenia
- Typ oferty: nowe mieszkanie na sprzedaż
- Cena: 381 174 zł (11 100 zł/m²)
- Termin realizacji: październik 2027
- Status oferty: dostępne
- Rynek: pierwotny (oferta dewelopera)
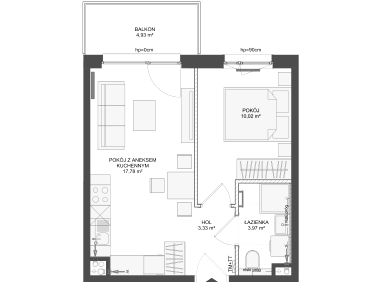
- Charakterystyka mieszkania: 34,34 m², 2 pokoje, 1 łazienka; stan: deweloperski
- Budynek: blok mieszkalny
- Rozkład mieszkania: piętro 1/4, jednopoziomowe
- Powierzchnia dodatkowa: balkon (4,9 m²)
- Kuchnia: aneks kuchenny
- Miejsce/a postojowe: w garażu wielostanowiskowym (146 miejsc); garaż w bryle budynku
naziemne (28 miejsc)
- Źródło: oferta dewelopera: Euro Styl S.A., zaktualizowane: 30.10.2025
- sygnatura ogłoszenia: B5/13
Lokalizacja
- Inwestycja: Osiedle przy Błoniach
- Adres: Błoń Janowskich, Janowo, Rumia, pomorskie
- Na terenie inwestycji: plac zabaw, wózkownia, rowerownia, ogrody deszczowe
- W pobliżu żłobek, przedszkole, szkoła podstawowa, biblioteka, restauracja, kawiarnia, pub, fitness, siłownia, boisko, apteka, przychodnia, przystanek autobusowy, supermarket, hotel, posterunek policji, bankomat, kościół, poczta, bank, park, plac zabaw, błonia janowskie
Opis nieruchomości
Oferujemy 2-pokojowe mieszkanie składające się z salonu z aneksem kuchennym, sypialni, łazienki i balkonu, mieszczące się na Osiedlu przy błoniach. (...)
Rozwiń opis

Inwestycja realizowana przez:
Euro Styl S.A.
Biuro Sprzedaży
ul. Błoń Janowskich 16
Rumia 84-230
| MieszkanieB4/7 | 36,40 m² | 11 030 zł/m² | 1/4 | 2 | 401 492 zł |
| Mieszkanie | ||||
|
||||
| B4/7 |
- Budynek: blok mieszkalny
- Stan wykończenia: deweloperski
- Charakterystyka mieszkania: jednopoziomowe, aneks kuchenny, 1 łazienka
- Ogrzewanie: miejskie
- Powierzchnia dodatkowa: balkon (5 m²)
- Miejsce/a postojowe:: w garażu wielostanowiskowym (146 miejsc); garaż w bryle budynku
naziemne (28 miejsc)
Oferujemy 2-pokojowe mieszkanie składające się z salonu z aneksem kuchennym, sypialni, łazienki i balkonu, mieszczące się na Osiedlu przy błoniach.
Więcej
sygnatura: B4/7
| MieszkanieB4/9 | 36,65 m² | 11 000 zł/m² | 1/4 | 2 | 403 150 zł |
| Mieszkanie | ||||
|
||||
| B4/9 |
| MieszkanieB4/14 | 36,65 m² | 11 000 zł/m² | 2/4 | 2 | 403 150 zł |
| Mieszkanie | ||||
|
||||
| B4/14 |
| MieszkanieB4/19 | 36,65 m² | 11 020 zł/m² | 3/4 | 2 | 403 883 zł |
| Mieszkanie | ||||
|
||||
| B4/19 |
| MieszkanieB5/1 | 34,76 m² | 11 000 zł/m² | parter/4 | 2 | 382 360 zł |
| Mieszkanie | ||||
|
||||
| B5/1 |
| MieszkanieB5/2 | 34,12 m² | 11 100 zł/m² | parter/4 | 2 | 378 732 zł |
| Mieszkanie | ||||
|
||||
| B5/2 |
| MieszkanieB5/5 | 34,90 m² | 11 100 zł/m² | parter/4 | 2 | 387 390 zł |
| Mieszkanie | ||||
|
||||
| B5/5 |
| MieszkanieB5/11 | 35,32 m² | 11 070 zł/m² | parter/4 | 2 | 390 992 zł |
| Mieszkanie | ||||
|
||||
| B5/11 |
| MieszkanieB5/12 | 34,87 m² | 11 080 zł/m² | 1/4 | 2 | 386 360 zł |
| Mieszkanie | ||||
|
||||
| B5/12 |
| MieszkanieB5/16 | 35,10 m² | 11 150 zł/m² | 1/4 | 2 | 391 365 zł |
| Mieszkanie | ||||
|
||||
| B5/16 |
Więcej
Biuro Sprzedaży
58 779 58...
58 779 58 00
- Zgłoś błąd lub naruszenie










